top of page

WYETH - CULVER CITY, CA
PROJECT:
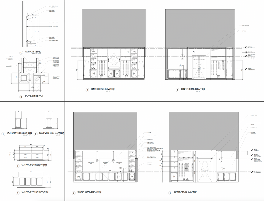
WYETH- A boutique retail clothing store by Jaycey Duprie, exudes a timeless and elegant ambiance. Jaycey envisioned a space that harmoniously blends natural elements with the sophisticated aesthetics of her contemporary clothing line, creating a unique and inviting shopping experience.
PHASE:
Concept, Schematic, Design Development, Construciton Documents
RESPONSIBILITIES:
-
Interior Architectural Designer
-
Space Planning
-
Code Compliance- ADA Compliance
-
Millwork Design and Details
-
Lighting Design
In Collaboration With- Martha Mulholland - All Rights Reserved
bottom of page




















