
VERMONT - LOS FELIZ, CA
PROJECT:
VERMONT- Nestled at the foot of the Greek Theater, Vermont stands as a private residential project with a rich historical heritage. The captivating allure of this home's unique characteristics inspired us to embark on a journey to restore its original charm. Despite the neglect of its previous owners, we were entrusted with the task of unveiling the hidden beauty within its walls. By delicately peeling back the layers of time and rejuvenating its essence with care, we aimed to revive Vermont to the vibrant life it was always destined to embody.
PHASES:
Concept, Schematic, Design Development
RESPONSIBILITIES:
-
Interior Designer
-
Space Planning
-
Code Compliance
-
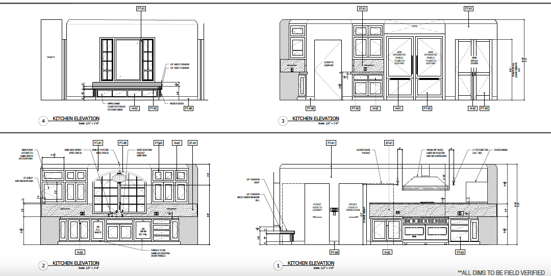
Construction Documents
-
Millwork Design and Details
-
Lighting Design
-
Model and Renders
In Collaboration with- Martha Mulholland - All Rights Reserved
























